
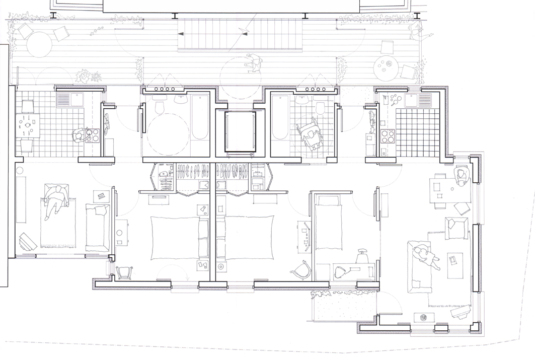
This project was part of an initiative by Dublin City Council to promote living in the city in good quality, well-designed, environmentally sustainable and affordable housing. Our design was awarded first prize in an international open competition. Rising to seven storeys in height, the building, contains eleven one and two bedroom apartments over a health centre on the ground floor, it is situated on a prominent corner site in Dublin city-centre.
The building is efficiently arranged in three clear organisational and structural zones - the circulation zone is open air but sheltered from the elements, and comprises balconies and a common stair made of untreated iroko boards supported on a light-weight steel frame; the services zone is a collection of neat, cellular spaces containing kitchens, bathrooms, lobbies and a lift; while the living zone is bright and airy, facing the street. Kitchens link across the three zones to create east-west dual aspect living spaces. Precast concrete planks span from the services cell walls to a single skin blockwork external wall, giving maximum flexibility for future lifetime homes adaption.
* The project commenced with Howley Harrington architects and completed by Sean Harrington Architects.
.jpg)

This project was part of an initiative by Dublin City Council to promote living in the city in good quality, well-designed, environmentally sustainable and affordable housing



