
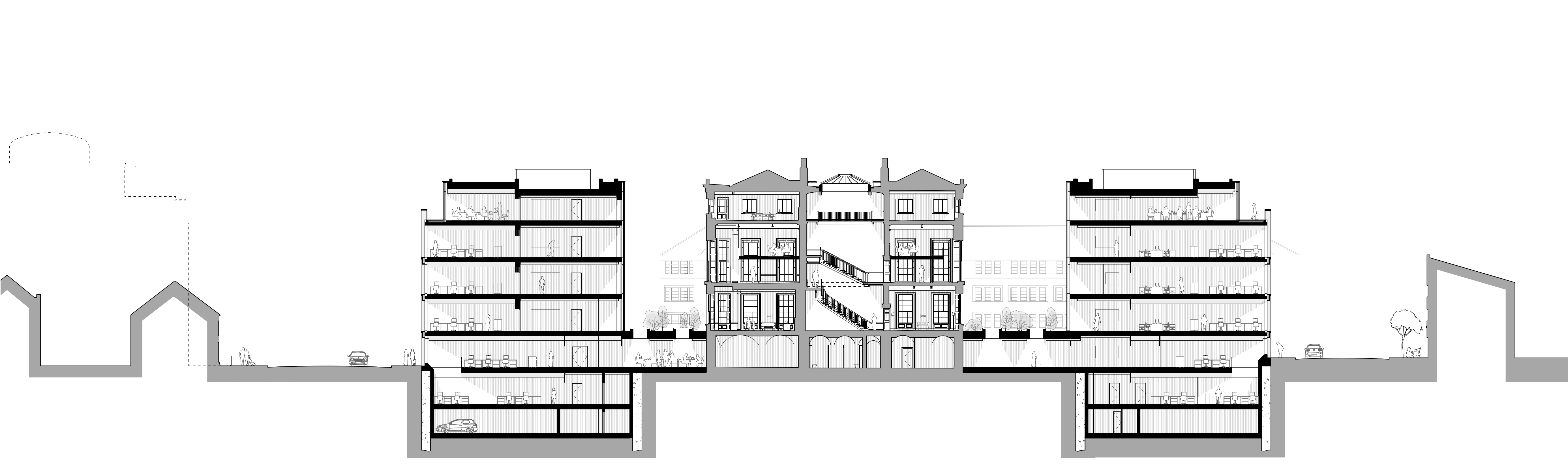
Aldborough House was the last great eighteenth-century city mansion built in Dublin, completed just before the Act of Union changed the social status of the city, it remains a significant building despite its much changed curtilage and urban context. The proposed redevelopment seeks to reinstate a landmark presence within an enhanced contemporary setting, repurposing the house as the centrepiece of a corporate office headquarters. Our design creates an urban marker uniting disparate urban scales while restoring the formality and Palladian symmetry of the historic house opening onto the street as originally intended.
The proposal includes full restoration of the main house and pavilion wings, together with the removal of boundary walls and the many inappropriate accretions. New contemporary wings echo the materiality and proportions of the historic house, to which they are connected by light glazed link ‘shadow gaps’. The urban context is recognised by the treatment of the side street facades with a woven pattern of brickwork creating a more human scale.




New contemporary wings echo the materiality and proportions of the historic house, to which they are connected by light glazed link ‘shadow gaps’




